Sanierte Doppelhaushälfte in Bestlage von Wedel

Die Lage

Die rund 35.000 Einwohner zählende Stadt Wedel (Kreis Pinneberg) gehört zu den beliebten Elbvororten Hamburgs.
Die attraktive Lage an der Elbe, viel Grün und die gute Verkehrsanbindung machen Wedel zu einem besonders gefragten Wohnstandort.
Neben der S-Bahn-Anbindung nach Hamburg befindet sich auch die Bushaltestelle der Linie 189 mit direkter Verbindung nach Blankenese
nur etwa 100 m von der Immobilie entfernt. Hier verbindet sich das Flair einer kleinen Stadt mit einer guten Infrastruktur.

In den lebendigen Einkaufsstraßen rund um die Bahnhofstraße finden sich viele Geschäfte, Cafés und Restaurants.
Ergänzt wird das Angebot durch Schulen, Kitas sowie vielfältigen Sportmöglichkeiten, unter anderem beim bekannten SC Rist, Wedel.
Der Wochenmarkt sorgt am Samstag zusätzlich für frische regionale Produkte und eine angenehme Atmosphäre im Zentrum.
Besonders prägend ist die lange Elbküste mit südwestlicher Ausrichtung sowie ein breiter Grüngürtel rund um die Stadt.
Der neu gestaltete Hafenbereich nahe dem Schulauer Fährhaus lädt ebenso wie die Promenade zum Spazieren und Verweilen ein.
Nur wenige Schritte von der Strandbar Badebucht entfernt, beginnt zudem ein weitläufiges Naherholungsgebiet, das ideale Möglichkeiten
für Spaziergänge, Radtouren und Freizeitaktivitäten in der Natur bietet.

Die Lage an der Elbe, die gute Infrastruktur und die schnelle Verbindung nach Hamburg definieren diese besonders hohe Wohnqualität.
Sie können von dem Grundstück aus die Elbe, alle Einkaufsmöglichkeiten und den S-Bahnhof zu Fuß erreichen.
Zentraler geht es eigentlich nicht!

Die Haushälfte

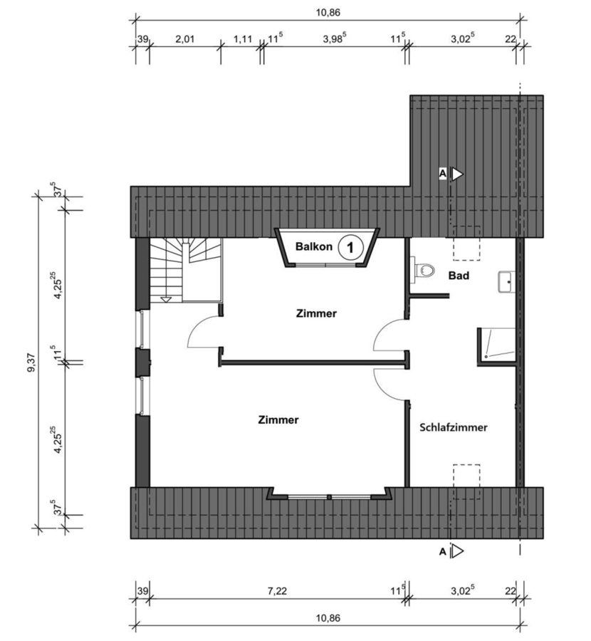
Die Doppelhaushälfte bietet eine Wohnfläche von etwa 135 m², verteilt auf Erd- und Obergeschoss.
Ergänzt wird dieses Raumangebot durch eine großzügige Terrasse mit rund 20 m² sowie einen überdachten Freisitz
von ca. 6 m². Zum rund 328 m² großen Grundstücksanteil (aufgeteilt nach WEG) gehören außerdem ein gepflegtes Gartenhaus
und zwei private PKW-Stellplätze.

In 2019 wurde das Erdgeschoss komplett modernisiert. Dabei wurden sämtliche Fenster durch dreifach verglaste Kunststofffenster
mit elektrischen Rollläden ersetzt. Zudem wurden alle Fußböden erneuert, ebenso Küche, Badezimmer und Gäste-WC komplett neu
gestaltet. Zusätzlich wurde eine neue Gas-Zentralheizung inklusive Heizkörpern installiert.
Sowohl Wasser- als auch Elektroleitungen wurden vollständig erneuert.

In den Jahren 2019, 2023 und 2024 erfolgten nochmals umfangreiche Modernisierungen, sodass sich die Immobilie heute in
einem nahezu neuwertigen Zustand präsentiert. Dazu wurde das Obergeschoss vollständig neu konzipiert. Es überzeugt durch
eine moderne Raumgestaltung. Hier befinden sich ein großzügiges Kinderzimmer sowie ein weiteres Zimmer mit Zugang zum Balkon,
das derzeit als Büro genutzt wird. Das Elternschlafzimmer ist momentan sowohl über das Büro als auch über das Kinderzimmer erreichbar.
Reizvoll ist die derzeit offen gestaltete Verbindung zwischen Schlafbereich und Badezimmer, die fließend ineinander übergehen und dem
Raum eine loftartige Atmosphäre verleihen.

Im Zuge der Sanierung wurde eine moderne Fußbodenheizung verbaut und sorgt seitdem für angenehmes Raumklima.
Auch energetische Maßnahmen wurden um-gesetzt: Sowohl die Dachdämmung als auch die Dämmung zwischen Erd- und
Obergeschoss wurden erneuert. Ergänzend wurden die Treppe aufgearbeitet und neu lackiert, die Fassade gestrichen sowie
die Dachrinnen ausgetauscht.

Die ersten Einzelheiten

Das Baujahr der Immobilie ist 1944 und wurde 2019/2023/2024 umfangreich saniert
Die Beheizung erfolgt über eine Fußbodenheizung
Das Objekt wird versorgt über Gas
Die Wohnfläche beträgt ca. 145 m² (inkl. 50% Terrassenfläche)
Das Haus verfügt über fünf Zimmer
Es liegt ein Energie-Bedarfsausweis vor Erstellt 08.11.2024, gültig bis 07.11.2034
Der Energiebedarf beträgt 120 kWh/(m²a)
Dies entspricht der Energieeffizienzklasse D
Der Kaufpreis für das Haus beträgt 580.000,- €

Die Nebenkosten und die Courtage

Diese Immobilie wird provisionsfrei für den Käufer angeboten.

Die mit dem Erwerb zusammenhän-genden Kosten wie Grunderwerbsteuer, Notar- und Grundbuchkosten trägt allein der Käufer.
Alle Angaben beruhen auf Auskünften Dritter.

Für die Richtigkeit der Angaben können wir deshalb keine Gewähr übernehmen.
Es gelten unsere nachstehend aufgeführten Geschäftsbedingungen.
Exposé bestellen:





Kontaktieren Sie mich bitte vorzugsweise entweder unter folgender E-Mail:



Oder kontaktieren Sie mich gerne unter folgender Nummer:

*Pflichtfeld
Welche ihrer Daten gespeichert werden und wer darauf Zugriff hat, erfahren Sie in unserer Datenschutzerklärung auf dieser Website.
Hinweis zu unseren Textinformationen:
Wir haben uns entschieden, auf eine geschlechterspezifische Sprache zu verzichten. Dies bedeutet jedoch keinesfalls, dass wir irgendjemanden ausschließen oder weniger wertschätzen. Im Gegenteil: Für uns stehen Respekt, Toleranz und Gleichbehandlung im Mittelpunkt unseres Handelns. Unabhängig davon, ob jemand sich als Frau, Mann oder divers identifiziert — wir behandeln alle Menschen mit derselben Wertschätzung und achten ihre individuellen Lebensweisen und Perspektiven. Unser Ziel ist es, eine leicht lesbare inklusive und respektvolle Kommunikation zu fördern, ohne dabei den Fokus auf die eigentlichen Inhalte zu verlieren. Wir danken Ihnen für Ihr Verständnis. 
Sie erreichen uns für alle Fragen, Exposés, Bewertungen und Hinweise
montags bis freitags von 9:00 bis 18:00 Uhr

Förster & Hilms Immobiliengesellschaft mbH
Süllbergsterrasse 4
22587 Hamburg
Tel. (040) 86 62 43 - 0
sowie (24/7) per E-Mail: info@foersterhilms.de

Weitere juristische Kundeninformationen, eine Widerrufsbelehrung und ein eventuell benötigtes Widerrufsformular finden Sie mit folgendem Link:
https://www.foersterhilms.de/kundeninformationen