Nach wenigen Pinselstrichen können Sie einziehen

Die Lage

Im Norden der Stadt Wedel gelegen. Einkaufsmöglichkeiten für den täglichen Bedarf, eine Bus-Haltestelle (395) und verschiedene Schulen in fußläufiger Entfernung - ebenso zahlreiche Freizeitangebote.

Die gepflegte Wohnung

befindet sich in den beiden Obergeschossen eines Zweifamilienhauses (Rotsteinbau), das Mitte der neunziger Jahre errichtet und seitdem laufend Instand gehalten wurde.

Ein Stellplatz im Carport, ein Wäschekeller, ein großer Vorratskeller und ein Gartenhaus stehen zur alleinigen Nutzung zur Verfügung.

Die ersten Einzelheiten

Das Grundstück hat eine Größe von 601 m²
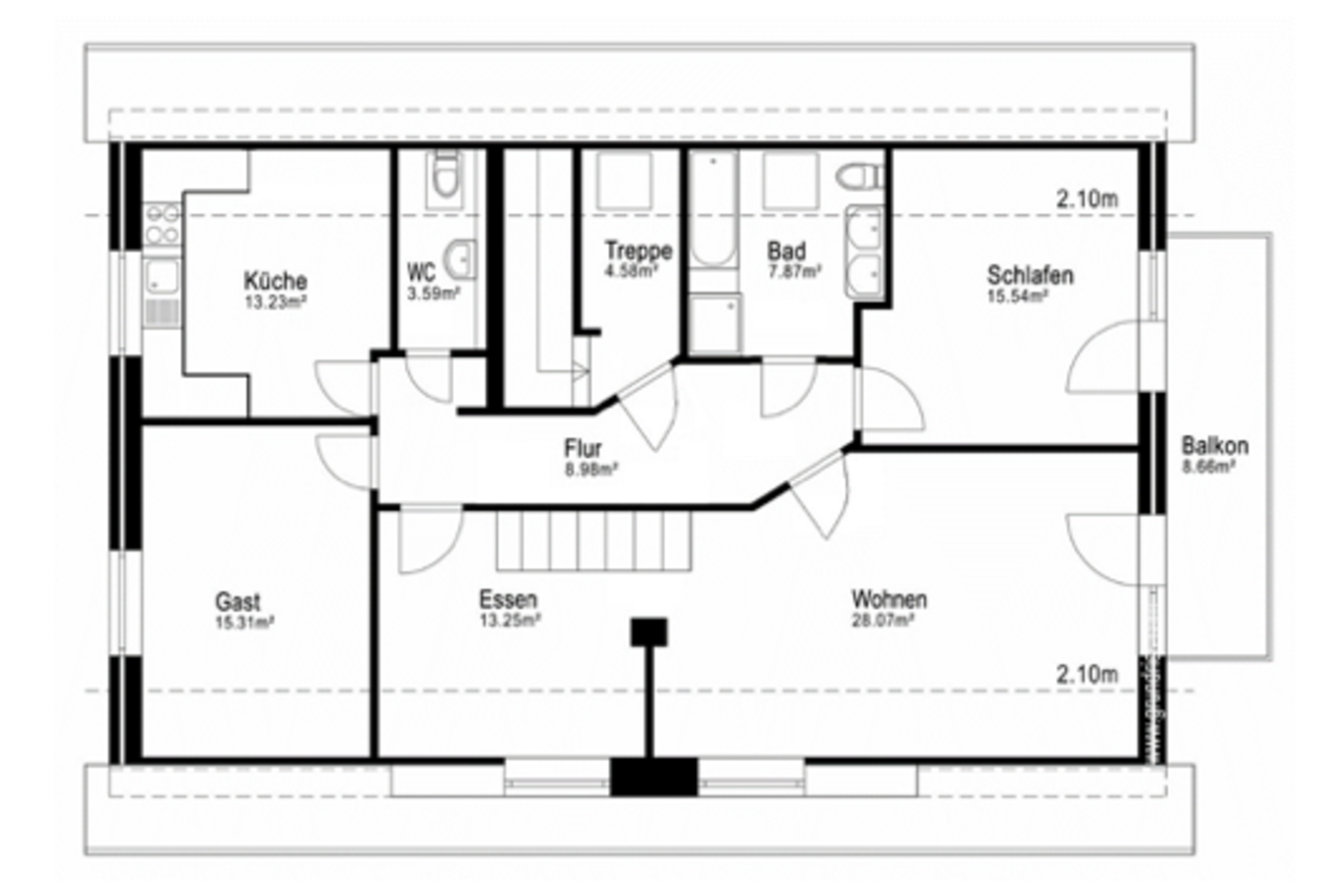
Die Wohnfläche beträgt ca. 130 m²
Die Maisonette-Wohnung verfügt über 5 Zimmer
Die monatlichen verbrauchsunabhängigen Kosten betragen EUR 115,-
Hinzu kommen die Kosten für Gas, Strom und Wasser
Der Energieverbrauch beträgt 102 kWh/(m²*a)
Die Übergabe kann ab Januar 2024 erfolgen
Der Kaufpreis für die Wohnung inkl. Stellplatz beträgt EUR 399.000,-

Die Nebenkosten und die Courtage

Die mit dem Erwerb zusammenhängenden Kosten wie Grunderwerbsteuer, Notar- und Grundbuchkosten trägt allein der Käufer. Die Courtage wird hälftig vom Käufer und vom Verkäufer getragen und beträgt insgesamt 6,00 % einschließlich Mehrwertsteuer auf den Kaufpreis und ist bei Vertragsabschluss verdient und fällig. Alle Angaben beruhen auf Auskünften Dritter. Für die Richtigkeit der Angaben können wir deshalb keine Gewähr übernehmen. Es gelten unsere Allgemeinen Geschäftsbedingungen.
Exposé bestellen:





Kontaktieren Sie mich bitte vorzugsweise entweder unter folgender E-Mail:



Oder kontaktieren Sie mich gerne unter folgender Nummer:

*Pflichtfeld
Welche ihrer Daten gespeichert werden und wer darauf Zugriff hat, erfahren Sie in unserer Datenschutzerklärung auf dieser Website.
Hinweis zu unseren Textinformationen:
Wir haben uns entschieden, auf eine geschlechterspezifische Sprache zu verzichten. Dies bedeutet jedoch keinesfalls, dass wir irgendjemanden ausschließen oder weniger wertschätzen. Im Gegenteil: Für uns stehen Respekt, Toleranz und Gleichbehandlung im Mittelpunkt unseres Handelns. Unabhängig davon, ob jemand sich als Frau, Mann oder divers identifiziert — wir behandeln alle Menschen mit derselben Wertschätzung und achten ihre individuellen Lebensweisen und Perspektiven. Unser Ziel ist es, eine leicht lesbare inklusive und respektvolle Kommunikation zu fördern, ohne dabei den Fokus auf die eigentlichen Inhalte zu verlieren. Wir danken Ihnen für Ihr Verständnis. 
Sie erreichen uns für alle Fragen, Exposés, Bewertungen und Hinweise
montags bis freitags von 9:00 bis 18:00 Uhr

Förster & Hilms Immobiliengesellschaft mbH
Süllbergsterrasse 4
22587 Hamburg
Tel. (040) 86 62 43 - 0
sowie (24/7) per E-Mail: info@foersterhilms.de

Weitere juristische Kundeninformationen, eine Widerrufsbelehrung und ein eventuell benötigtes Widerrufsformular finden Sie mit folgendem Link:
https://www.foersterhilms.de/kundeninformationen